SISTEMI C45K-NI in C55K-NI
Ugodni sistem za izdelavo predelnih sten v komercialnih objektih
AluK C45K-NI in C55K-NI
Sistemi C45K-NI in C55K-NI ponujajo zanesljive in prilagodljive rešitve za izdelavo različnih tipov oken in vrat brez toplotne pregrade. Odlikuje jih vsestranskost pri uporabi – primerni so tako za stanovanjske kot tudi poslovne objekte, kjer je pomembna enostavna vgradnja, funkcionalnost in trajnost.
Njihova zasnova omogoča širok spekter izvedb, od klasičnih oken do enokrilnih in dvokrilnih vrat, vključno z izložbenimi stenami in rešitvami za notranje prostore. Poseben poudarek je na tesnjenju in odpornosti, kar zagotavlja dobro zaščito pred zunanjimi vplivi in dolgotrajno brezhibno delovanje.
Sodoben, čist dizajn z ravnimi linijami se lepo vključi v vsak arhitekturni slog, obenem pa omogoča popolno funkcionalnost in estetiko, ki jo zahtevajo sodobni uporabniki.
Več kot 140 možnih barv in obdelav
KONFIGURACIJE
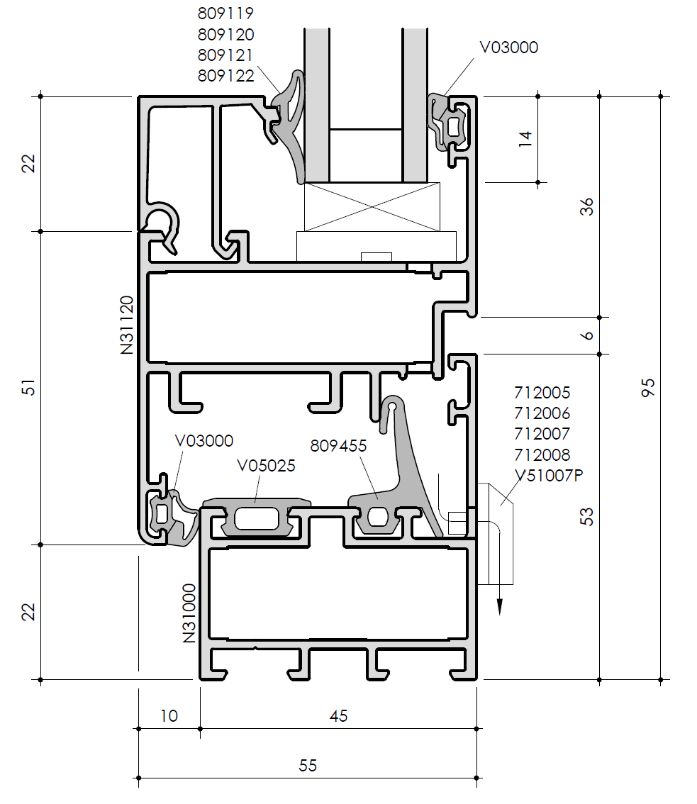
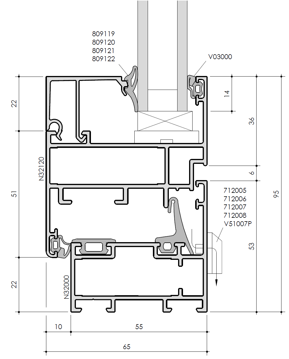
PREREZI
DOKUMENTI
Popis AluK C45K-NI
Popis Aluk C55K-NI












































































