DRSNE PANORAMSKE STENE INFINIUM
Panoramske stene brez vidnega okvirja.
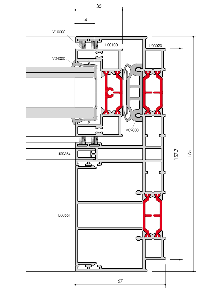
INFINIUM
Infinium združuje notranje in zunanje bivalne prostore v popolni harmoniji. Prostori, ki se prelivajo drug v drugega, so ustvarjeni zahvaljujoč izjemno tankim profilom. Kljub njihovi tankosti sistem zagotavlja visoko stopnjo varnosti in toplotne izolacije, obenem pa omogoča uživanje v neprekinjenih panoramskih razgledih.
Aluminijasti okvir in krilo sta popolnoma skrita, pragovi pa so poravnani s tlemi, kar omogoča nemoten prehod med prostori.
Sistem Infinium navdušuje z elegantnim in preprostim načinom odpiranja ter dovršeno obliko, ki očara iz vsakega zornega kota. Njegova najbolj osupljiva oblikovna značilnost ostaja skoraj neopažena – izjemno ozek sredinski profil, širok le 21 mm, ustvarja občutek neskončnega razgleda in brezmejne povezanosti z zunanjostjo.

















































































