AluK Infineo C67K-M
Okenski sistem z minimalno vidno površino profilov
AluK Infineo C67K-M
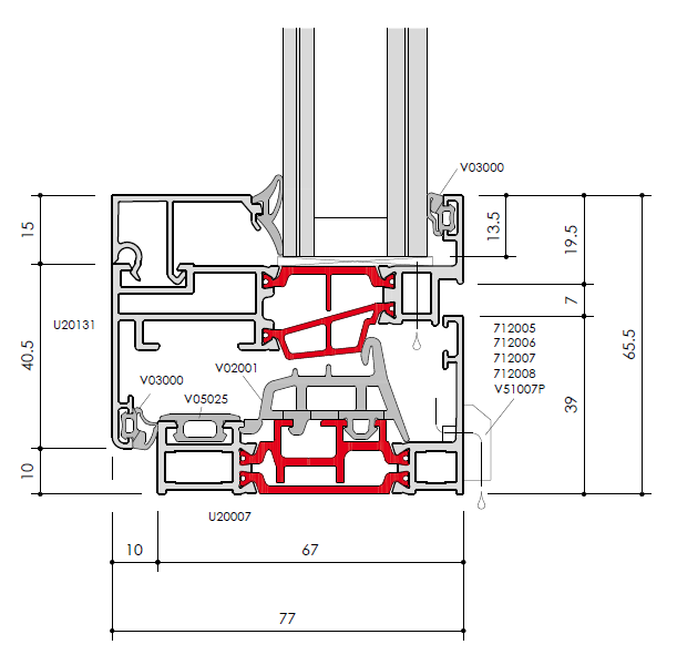
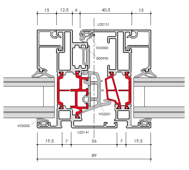
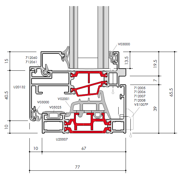
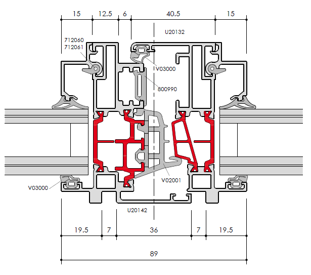
Okenski sistem Infineo C67K-M je zasnovan za izdelavo kakovostnih oken velikih dimenzij in tež, ki zagotavljajo visoko zmogljivost na področju toplotne in zvočne izolacije, zrakotesnosti ter vodotesnosti.
Bistvo sistema predstavlja minimalna vidna površina profilov, zmanjšana na zgolj 65 mm na robovih oken.
Več kot 140 možnih barv in obdelav
KONFIGURACIJE
DOKUMENTI
Popis Aluk C67K-M




















