AluK C77K in C77K-CS
Okenski sistemi s še boljšo toplotno izolacijo ter možnostjo prekritega krila
AluK C77K in C77K-CS
Okenski sistem C77K s širšim termičnim mostom dosega še boljše vrednosti toplotne prevodnosti ter izpolnjuje tudi najvišje zahteve po toplotni izolaciji.
Odlične zmogljivosti, visoka kakovost in eleganten dizajn ga naredijo primernega za vse vrste objektov, tako pri adaptacijah kot pri novogradnjah.
Sistem omogoča izvedbo velikih odpirljivih steklenih površin, kar v prostore prinaša veliko naravne svetlobe, možnost prekritega krila (C77K-CS) pa dodatno prispeva k brezhibnemu vizualnemu vtisu, saj od zunaj ni vidne razlike med fiksnim in odpirljivim delom okna.
Več kot 140 možnih barv in obdelav
KONFIGURACIJE
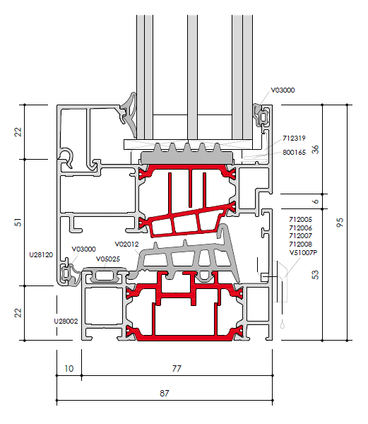
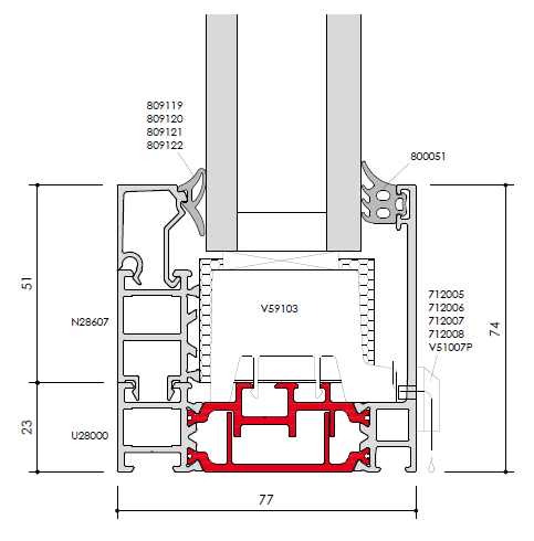
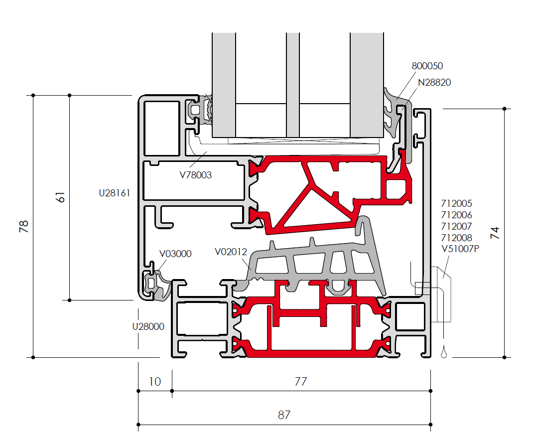
PREREZI
C77K
C77K-CS skrito krilo
Sistem C77K-CS ponuja tudi možnost t.i. skritega krila, pri čemer se iz zunanje strani objekta na oknih ne vidi nobenega utora.
DOKUMENTI
Popis Aluk C77K
OPIS SISTEMA IN OSNOVNI PODATKI:
"Sistem ALUK C77K za izdelavo oken in balkonskih vrat z izboljšanimi termičnimi lastnostmi.
Globina osnovnih profilov je 77mm, globina kril je 87mm. Okovje je sistemsko.
V postavkah opisanih v nadaljevanju je zajeta izdelava, dobava in montaža ALU elementov stavbnega pohištva.
Vsi elementi morajo biti izdelani po navodilih proizvajalca ter skladni s SIST EN 14351-1 za pridobitev CE znaka.
Vgrajeno stavbno pohištvo mora ustrezati kriterijem Tehnične smernice o učinkoviti rabi energije TSG-1-004:2010.
Površinska obdelava profilov mora imeti pri prašnem barvanju certifikat ""QUALICOAT"", pri eloksiranju certifikat ""QUALANOD"",
pred neugodnimi vremenskimi pogoji, bližini morja in neprimernem ozračju pa certifikat ""QUALICOAT SEASIDE""."
"Za alu profile morajo biti izpolnjeni naslednji pogoji:
- Zlitina profilov EN AW-6060
- Stanje profilov T6
- Sestava zlitine profilov po EN 573-3
- Mehanske lastnosti profilov po EN 755-2
- Tolerance profilov po EN 12020-2"
"Zahtevane tehnične lastnosti sistema:
- Vodotesnost E1500 po EN 1027 in EN 12208
- Prepustnost zraka razred 4 po EN 1026 in EN12207
- Odpornost na udar vetra C5 po EN 12211 in EN 12210"
Popis Aluk C77K-CS
OPIS SISTEMA IN OSNOVNI PODATKI:
"Sistem ALUK C77K-CS za izdelavo oken in balkonskih vrat z izboljšanimi termičnimi lastnostmi.
Globina osnovnih profilov je 77mm, globina kril je 87mm. Okovje je sistemsko.
V postavkah opisanih v nadaljevanju je zajeta izdelava, dobava in montaža ALU elementov stavbnega pohištva.
Vsi elementi morajo biti izdelani po navodilih proizvajalca ter skladni s SIST EN 14351-1 za pridobitev CE znaka.
Vgrajeno stavbno pohištvo mora ustrezati kriterijem Tehnične smernice o učinkoviti rabi energije TSG-1-004:2010.
Površinska obdelava profilov mora imeti pri prašnem barvanju certifikat ""QUALICOAT"", pri eloksiranju certifikat ""QUALANOD"",
pred neugodnimi vremenskimi pogoji, bližini morja in neprimernem ozračju pa certifikat ""QUALICOAT SEASIDE""."
"Za alu profile morajo biti izpolnjeni naslednji pogoji:
- Zlitina profilov EN AW-6060
- Stanje profilov T6
- Sestava zlitine profilov po EN 573-3
- Mehanske lastnosti profilov po EN 755-2
- Tolerance profilov po EN 12020-2"
"Zahtevane tehnične lastnosti sistema:
- Vodotesnost E1500 po EN 1027 in EN 12208
- Prepustnost zraka razred 4 po EN 1026 in EN12207
- Odpornost na udar vetra C5 po EN 12211 in EN 12210"


































