AluK C67K
Okenski sistemi z visoko energetsko učinkovitostjo
AluK C67K
Vrhunski sistem AluK C67K prinaša do 30 % izboljšane termične lastnosti, ustreza najvišjim standardom energetske učinkovitosti in omogoča maksimalne prihranke energije. Z novim okovjem omogoča hitrejšo sestavo ter uporabo novih elegantnih kljuk NOVAE.
Vitki profili z ravnimi linijami,
personalizirane barve kljuk in tečajev ter možnost izdelave
oken velikih dimenzij naredijo sistem AluK C67K idealen za zadovoljitev tudi najvišjih arhitekturnih zahtev.
Več kot 140 možnih barv in obdelav
KONFIGURACIJE
PREREZI
DOKUMENTI
Popis Aluk C67K
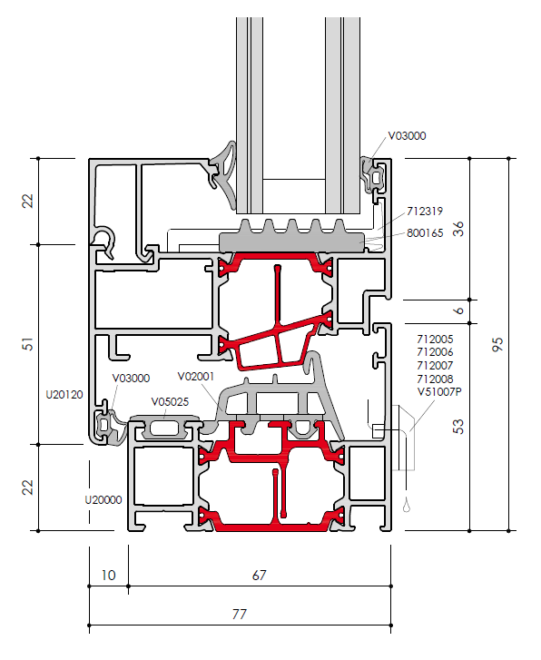
Sistem ALUK C67K TOP+ za izdelavo oken in balkonskih vrat z izboljšanimi termičnimi lastnostmi.
Globina osnovnih profilov je 67mm, globina kril je 77mm. Okovje je sistemsko.
V postavkah opisanih v nadaljevanju je zajeta izdelava, dobava in montaža ALU elementov stavbnega pohištva.
Vsi elementi morajo biti izdelani po navodilih proizvajalca ter skladni s SIST EN 14351-1 za pridobitev CE znaka.
Vgrajeno stavbno pohištvo mora ustrezati kriterijem Tehnične smernice o učinkoviti rabi energije TSG-1-004:2010.
Površinska obdelava profilov mora imeti pri prašnem barvanju certifikat "QUALICOAT", pri eloksiranju certifikat "QUALANOD",
pred neugodnimi vremenskimi pogoji, bližini morja in neprimernem ozračju pa certifikat "QUALICOAT SEASIDE".
Za alu profile morajo biti izpolnjeni naslednji pogoji:
- Zlitina profilov EN AW-6060
- Stanje profilov T6
- Sestava zlitine profilov po EN 573-3
- Mehanske lastnosti profilov po EN 755-2
- Tolerance profilov po EN 12020-2
Zahtevane tehnične lastnosti sistema:
- Vodotesnost E1500 po EN 1027 in EN 12208
- Prepustnost zraka razred 4 po EN 1026 in EN12207
- Odpornost na udar vetra C5 po EN 12211 in EN 12210




























