AluK SG50
Sistem za izdelavo strukturnih kontinuiranih fasad.
AluK SG50
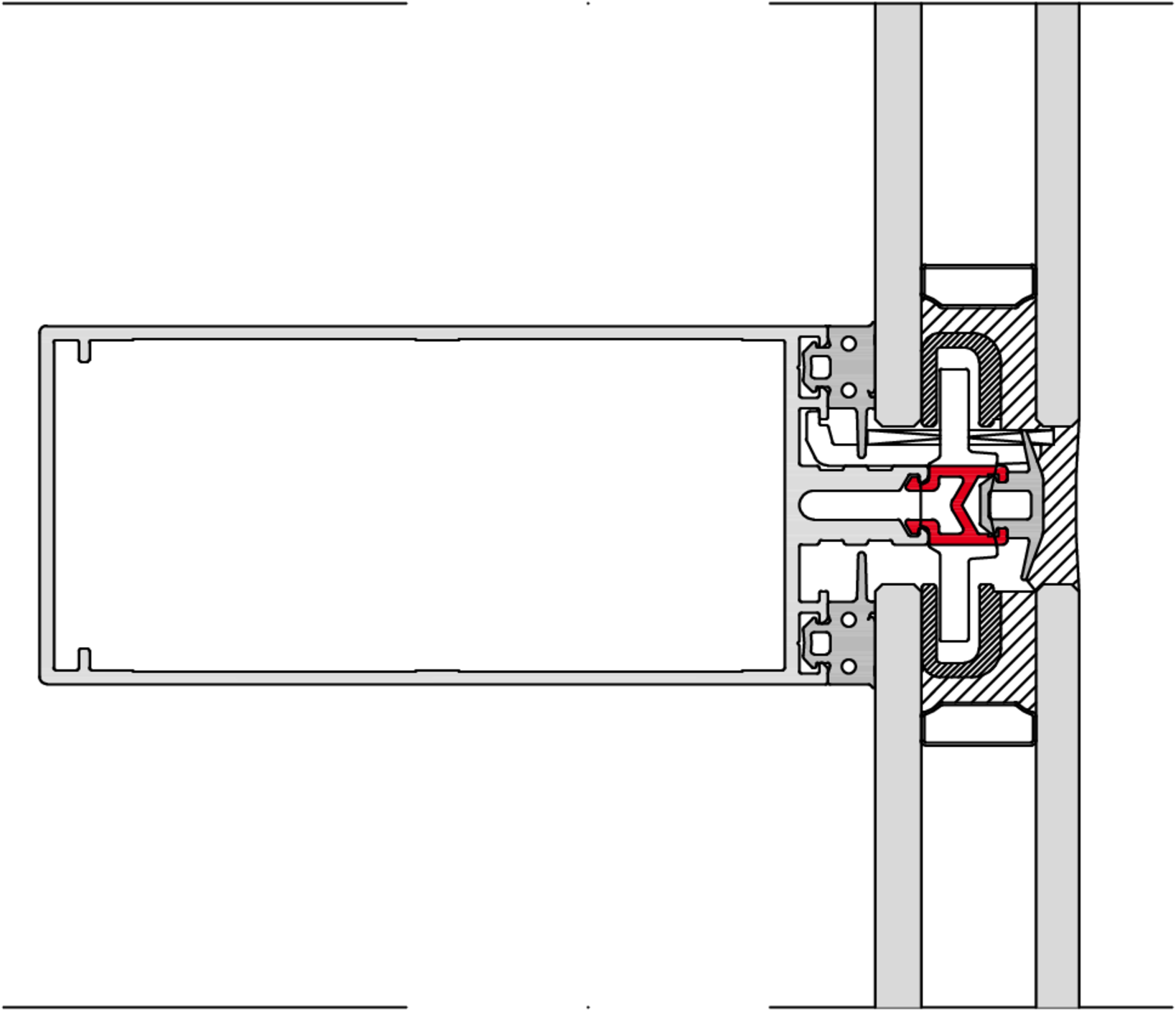
Sistem AluK SG50 omogoča izvedbo fasad brez vidnih aluminijastih profilov na zunanji strani, saj se steklo lepi ali mehansko pritrdi z vijaki. Tako je dosežena privlačna estetska kontinuiteta z minimalno vidno povezavo med steklenimi polji, široko le 21 mm.
Poleg posebej zasnovanih fasadnih oken z možnostjo odpiranja navznoter ali navzven je mogoče fasado kombinirati tudi z drugimi sistemi AluK.
Več kot 140 možnih barv in obdelav
PREREZI
DOKUMENTI
Popis SG50
Sistem je primeren za izdelavo kontinuiranih obešenih fasad z odpirajočimi elementi v strukturni tipologiji. Okovje je sistemsko.
V postavkah opisanih v nadaljevanju je zajeta izdelava, dobava in montaža ALU elementov stavbnega pohištva.
Vsi elementi morajo biti izdelani po navodilih proizvajalca ter skladni s SIST EN 14351-1 za pridobitev CE znaka.
Vgrajeno stavbno pohištvo mora ustrezati kriterijem Tehnične smernice o učinkoviti rabi energije TSG-1-004:2010.
Površinska obdelava profilov mora imeti pri prašnem barvanju certifikat ""QUALICOAT"", pri eloksiranju certifikat ""QUALANOD"",
pred neugodnimi vremenskimi pogoji, bližini morja in neprimernem ozračju pa certifikat ""QUALICOAT SEASIDE"".
Za alu profile morajo biti izpolnjeni naslednji pogoji:
- Zlitina profilov EN AW-6060
- Stanje profilov T6 ali T66
- Sestava zlitine profilov po EN 573-3
- Mehanske lastnosti profilov po EN 755-2
- Tolerance profilov po EN 12020-2
Zahtevane tehnične lastnosti sistema:
- Vodotesnost E1500 po EN 1027 in EN 12208
- Prepustnost zraka razred 4 po EN 1026 in EN12207
- Odpornost na udar vetra 2000Pa po EN 12211 in EN 12210



















