VRATNI SISTEM D67
Vratni sistem z visoko energetsko učinkovitostjo
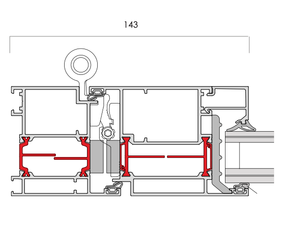
AluK D67
AluK D67 je sistem profilov in okovja, namenjen izdelavi visokokakovostnih termično izoliranih vhodnih vrat.
Omogoča izdelavo enokrilnih ali dvokrilnih vrat z notranjim ali zunanjim odpiranjem ter integracijo avtomatskega mehanizma ali uporabo znižanega praga.
Enotna oblika notranjega in zunanjega dela profila zagotavlja moderen in minimalističen videz vhodnih vrat.

Več kot 140 možnih barv in obdelav
KONFIGURACIJE
PREREZI
DOKUMENTI
Popis Aluk D67
Sistem ALUK D67 za izdelavo vrat z izboljšanimi termičnimi lastnostmi.
Globina profilov je 67mm. Okovje je sistemsko.
V postavkah opisanih v nadaljevanju je zajeta izdelava, dobava in montaža ALU elementov stavbnega pohištva.
Vsi elementi morajo biti izdelani po navodilih proizvajalca ter skladni s SIST EN 14351-1 za pridobitev CE znaka.
Vgrajeno stavbno pohištvo mora ustrezati kriterijem Tehnične smernice o učinkoviti rabi energije TSG-1-004:2010.
Površinska obdelava profilov mora imeti pri prašnem barvanju certifikat ""QUALICOAT"", pri eloksiranju certifikat ""QUALANOD"",
pred neugodnimi vremenskimi pogoji, bližini morja in neprimernem ozračju pa certifikat ""QUALICOAT SEASIDE"".
Za alu profile morajo biti izpolnjeni naslednji pogoji:
- Zlitina profilov EN AW-6060
- Stanje profilov T6
- Sestava zlitine profilov po EN 573-3
- Mehanske lastnosti profilov po EN 755-2
- Tolerance profilov po EN 12020-2"
Zahtevane tehnične lastnosti sistema:
- Vodotesnost 2B po EN 1027 in EN 12208
- Prepustnost zraka razred 4 po EN 1026 in EN12207
- Odpornost na udar vetra C5 po EN 12211 in EN 12210"









































































